Descrizione:
Vivere su più piani?
Qui è possibile.
Costruita nel 2001, questa abitazione indipendente si sviluppa su 4 livelli, tutti collegati da scala interna e da un ascensore privato.
Un immobile pensato per chi cerca spazio, funzionalità e una dimensione abitativa comoda e riservata.
La parola chiave?
Spazio.
Spazio per te e la tua famiglia.
Spazio per i tuoi hobby, per la tua creatività, per ogni momento della giornata.
Al piano terra, la zona giorno si apre su un soggiorno luminoso, una cucina separata in stile tradizionale e un giardino privato esposto a sud/ovest, perfetto per rilassarsi al sole o organizzare grigliate in compagnia.
Al primo piano troviamo due camere da letto, doppi servizi finestrati e due balconi.
Nei due livelli interrati, cinque locali accessori – alcuni riscaldati – offrono tutto lo spazio che serve per organizzare attrezzature sportive, cantina vini, area hobby o semplicemente per conservare in ordine tutto ciò che vuoi.
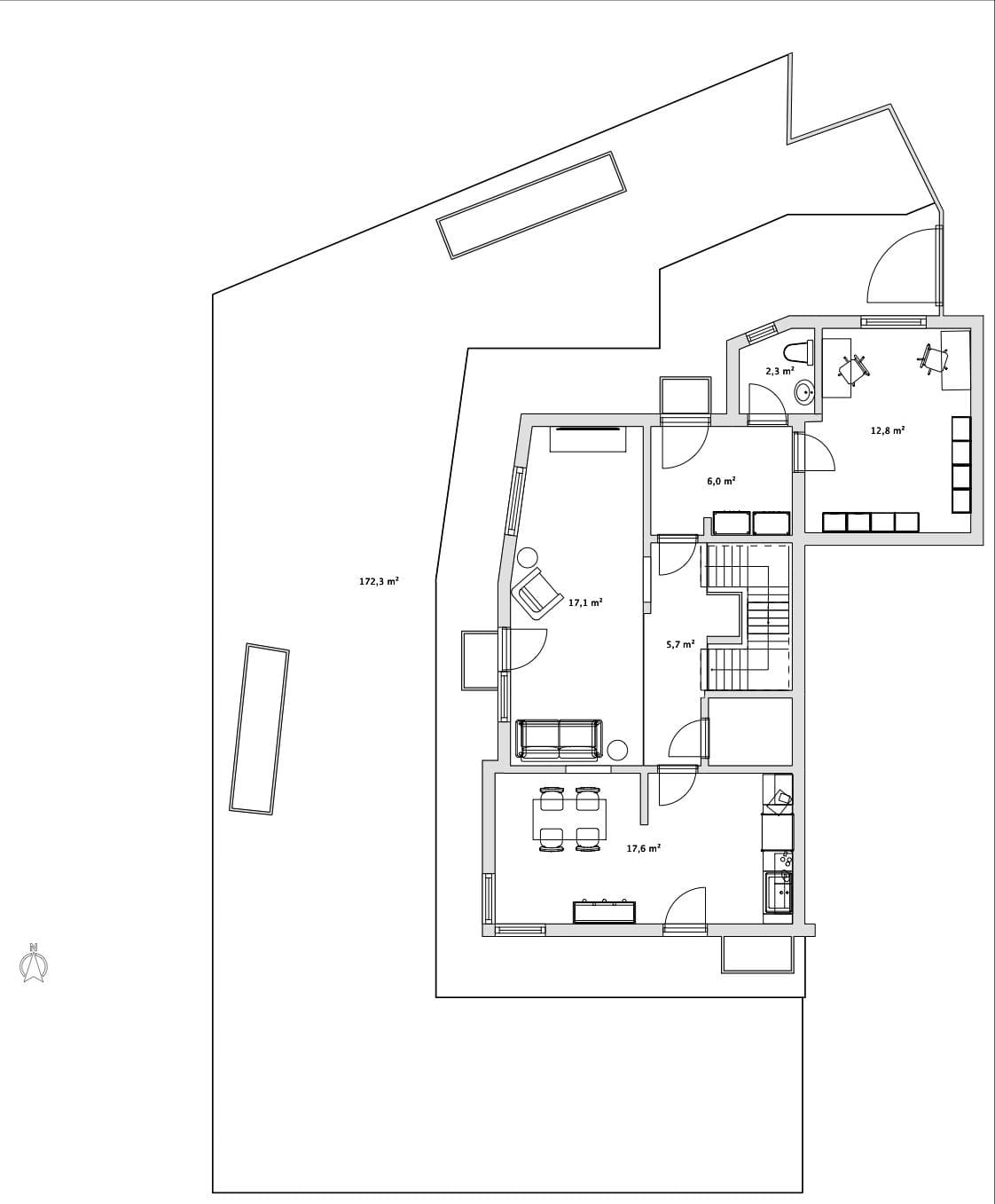
Piano terra:
•Ingresso
•Disimpegno
•WC finestrato
•Stanza/studio
•Soggiorno
•Cucina separata
•Terrazzo
•Giardino privato
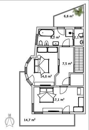
Primo piano:
•Disimpegno
•Due stanze matrimoniali
•Bagno con vasca finestrato
•WC di servizio finestrato
•Due balconi
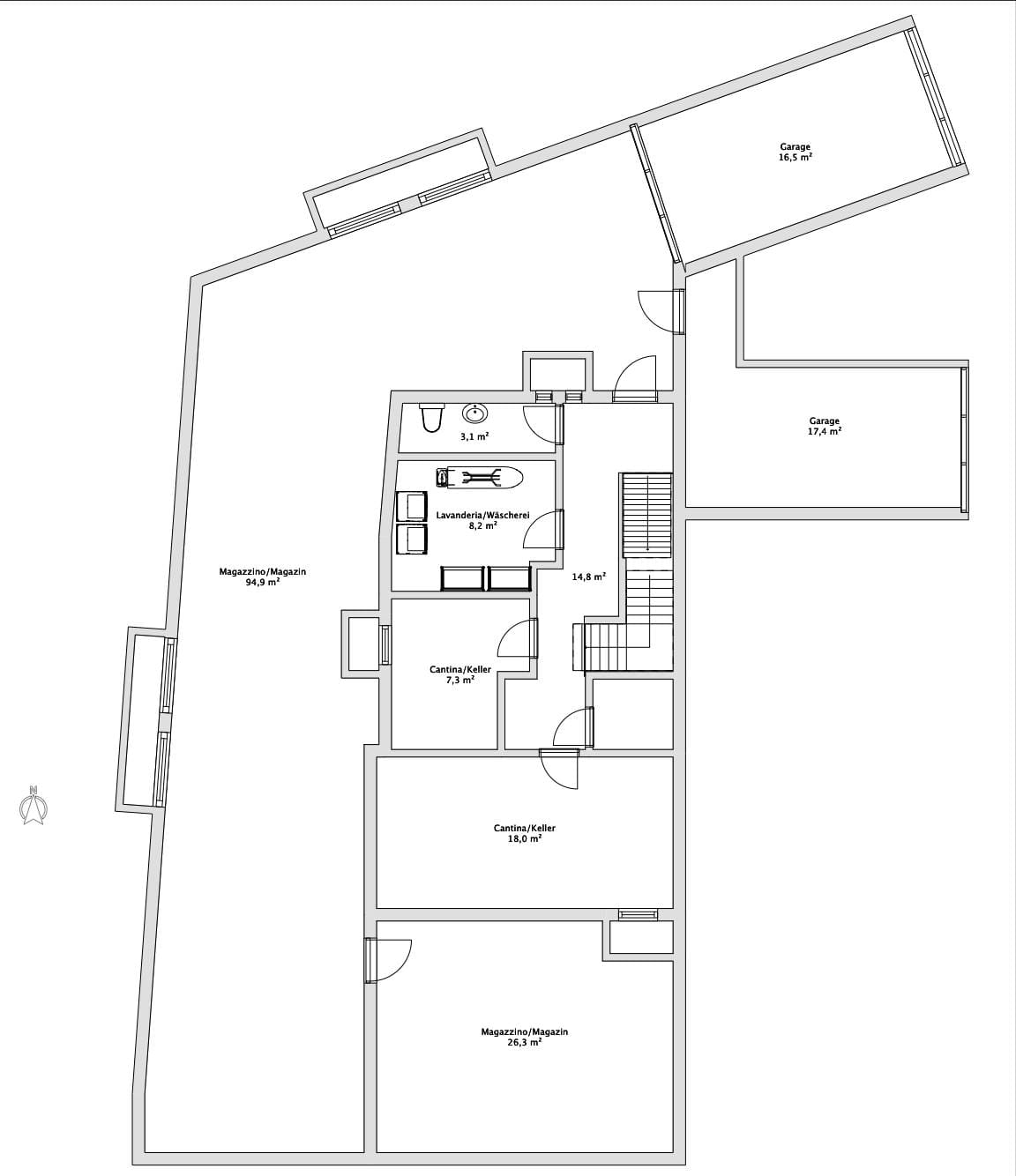
1° piano interrato:
•WC
•Lavanderia
•Due cantine
•Corridoio
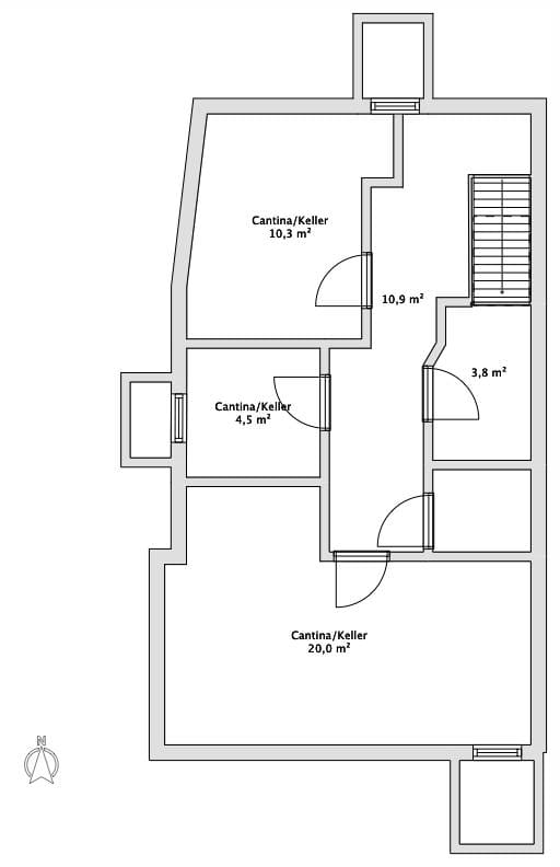
2° piano interrato:
•Tre cantine
•Corridoio
•Locale ascensore
Extra
•Box auto singolo €36.000
•Magazzino + secondo box auto €125.000
Un’opportunità ideale per chi cerca una soluzione indipendente con giardino privato, in un contesto tranquillo e ben servito, a pochi minuti dal centro di Merano.
Una casa comoda da vivere ogni giorno, perfetta anche per famiglie numerose o per chi desidera spazi distinti per lavorare da casa, coltivare passioni o semplicemente respirare.
Località:
Merano
Acquistare:
680.000,00 €
Superficie:
197 m² commerciali
4
Vani
3
Bagni
No
Ascensore
2
Garage / Posto macchina
G
Classe Energetica
Dove si trova l’immobile:
Ti interessa questo immobile?
Potrebbero interessarti anche

Trilocale con giardino - a Merano, Zona Obermais / Maia Alta - €520.000
- Località: Merano
- Acquistare: 520.000,00 €
- Superficie: 108 m² commerciali

Quadrilocale all'ultimo piano - a Merano, Zona Stadtzentrum / Centro Città - €499.000
- Località: Merano
- Acquistare: 499.000,00 €
- Superficie: 113 m² commerciali






































