Descrizione:
Magazzino in vendita a Merano – Via Lido
Cerchi uno spazio comodo e versatile per la tua attività?
A Merano, in via Lido, proponiamo in vendita un ampio spazio al primo piano interrato, utilizzabile come magazzino.
Composizione:
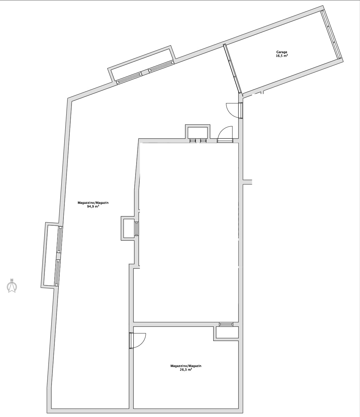
•Accesso con rampa carrabile e portone automatico (altezza 2,26 m)
•Magazzino di circa 16,5 m²
•Primo magazzino di circa 94,9 m², accessibile anche con l’auto
•Secondo magazzino di circa 26,3 m²
Perfetto per:
Artigiani, commercianti, collezionisti, hobbisti o chi cerca un ampio magazzino con accesso diretto.
Località:
Merano
Acquistare:
125.000,00 €
Superficie:
138 m² commerciali
0
Vani
0
Bagni
No
Ascensore
No
Garage / Posto macchina
No
Classe Energetica
Dove si trova l’immobile:
Ti interessa questo immobile?
Potrebbero interessarti anche

Monolocale con balcone - a Merano, Zona Obermais / Maia Alta - €160.000
- Località: Merano
- Acquistare: 160.000,00 €
- Superficie: 35 m² commerciali

Bilocale - a Merano, Zona Untermais / Maia Bassa - €180.000
- Località: Merano
- Acquistare: 180.000,00 €
- Superficie: 45 m² commerciali








